Desalination
DESALINATION WITH SOLAR ENERGY
.png)
Description of the technology
The MAG solar collector, which is used for the production of hot water for various uses, is the result of research for over a decade, with the aim of better exploitation of long sunshine in Greece as well as in other countries for solar heating in a much more energy-efficient way, without the simultaneous optical pollution present in the classical flat collectors.
During this decade the MAG solar collector was developed and with continuous improvements a very efficient final product was created.
The performance of the MAG solar collector is certified since 1997 after measurements conducted by the Centre for Renewable Energy Sources (CRES) using tele monitoring system for about 9 months ,according to the attached measuring arrangement for the system of a pair of MAG tubes which measurement gave the 16/6/97, 393lit/24h at the temperature of 39.34oC.
The above solar collector of space vacuum technology is characterized as a three walls vacuum tube (glass, copper and plastic in order from outside to inside) with high vacuum 10-4 Bar between the glass and the metallic wall, installed at the focus of an aluminium semi-cylindrical parabolic reflector.
The vacuum inside the tubes is of tester time resistance (test samples operate without problem since 1986).
MAG solar collectors are covered by 5 years guarantee.
.png)
Subject: Desalination with Solar Energy, by MAG+ CLOSED CIRCUIT SOLAR PANELS
(with a three walls vacuum tube in the hearth of a stable, not movable, semi-cylindrical paraboloid reflector) with high yields at high operating temperatures).
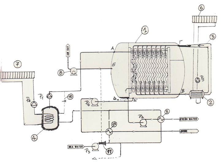
Desalination by evaporation at 0,1 - 0,2 bar vacuum suction, in a corrugated titanium plate heat exchanger.
Case: 300 m3/ day(24 h) or 100 m3/ 8 h per day (average efficiency).
THERMAL ENERGY [100 m3/8 h per day. ]
Therefore: 2 x12,5 m3 * ΔΤ (660 C – 380 C) = 700.000 kcal/hr
(5.773.000 Kcal/day : 0,85 x 6.880 Kcal/day. MAG+) = 987 MAG+
Coil’s degree of efficiency (boilers :2 x 3.000 lit) = 0,85
MAG+ efficiency per day = 6.880 kcal/MAG+/day
(with intensifying flat reflectors, among the parabolic reflectors and covering 85% of the number of MAG (for 60cm Χ 177cm spread), to ensure the traffic for all positions, of the solar panels during servicing).
Project Budget - Financial Tender
1. Solar collectors procurement: 987 MAG+ x 430 €/MAG+ = 424.410 Euros
2. Transportation - Installation (iron construction): 987 MAG+ x 50 €/MAG+ = 49.350 Euros
3. Intensifying flat reflectors: 838 units x 100 €/unit = 83.800 Euros
4. Insulated Pipes, 2 circulation pumps, 2 automatisms
with 2 differential thermostats, valves etc. (for two central facilities): 25.440 Euros
5. Tow boilers 3.000 lit ( with a closed circuit
for heating by solar energy), insulated and with
casing for outer space: 9.000 Euros 6. Tow pump 12,5 m3/hr, for the preheating exchangers: 2.000 Euros 6. Tow seawater pumps (must we have and one spare) 12,5 m3/hr: . 4.000 Euros
7. Two pumps (the one spare) 20 m3/hr: 7.000 Euros
8. Two preheating seawater exchangers 150.000 kcal/hr: 5.000 Euros 10. Special steam pump
3.000 Euros
9. Pipes for seawater suction (accountably up to suction pumps),
preheating pipes, pipes for removed saltwater and desalinated
water after liquefaction, supply for boiler, and therefrom,
for the supply of the corrugated titanium plate heat exchanger by ALFA LAVAL
and for the appropriate connection of the output of the new steam,
through the steam pump , with the
insertion point of liquefying steam, at the upper part of the
corrugated titanium plate heat exchange : [STATEMENT] . ? 10.000 Euros
10. Corrugated titanium plate heat exchanger, by ALFA LAVAL, 300 m3/24 hr. and tow vacuum pump( one spare ): 30.000 Euros Total: 658.000 Euros Depreciation: 340 days * 100 m3 * 0,8 * 10 years = 272.000 m3 and 658.000 € / 272.000 m3 = 2,4 € / m3. NOT included shipping costs from Piraeus and other charges, fiscal stamps, customs duties, etc.
Yours sincerely the tender,

